Centre Rose Bloc

Porté par deux frères, le projet Rose Bloc se présente comme un espace accessible à une communauté élargie. Jeunes et moins jeunes, grimpeurs de tous niveaux, se côtoient pour partager les bienfaits d’une vie active.

Typologie

Commercial

Lieux

Montréal, Qc

Année de conception

2022

Services

Architecture (concours)

Architecture (concours)

Architecture (concours)

Ce centre s'insère dans un quartier aux potentiels riches, à proximité du canal Lachine, d'un woonerf, d'une école secondaire et de sa vie communautaire.

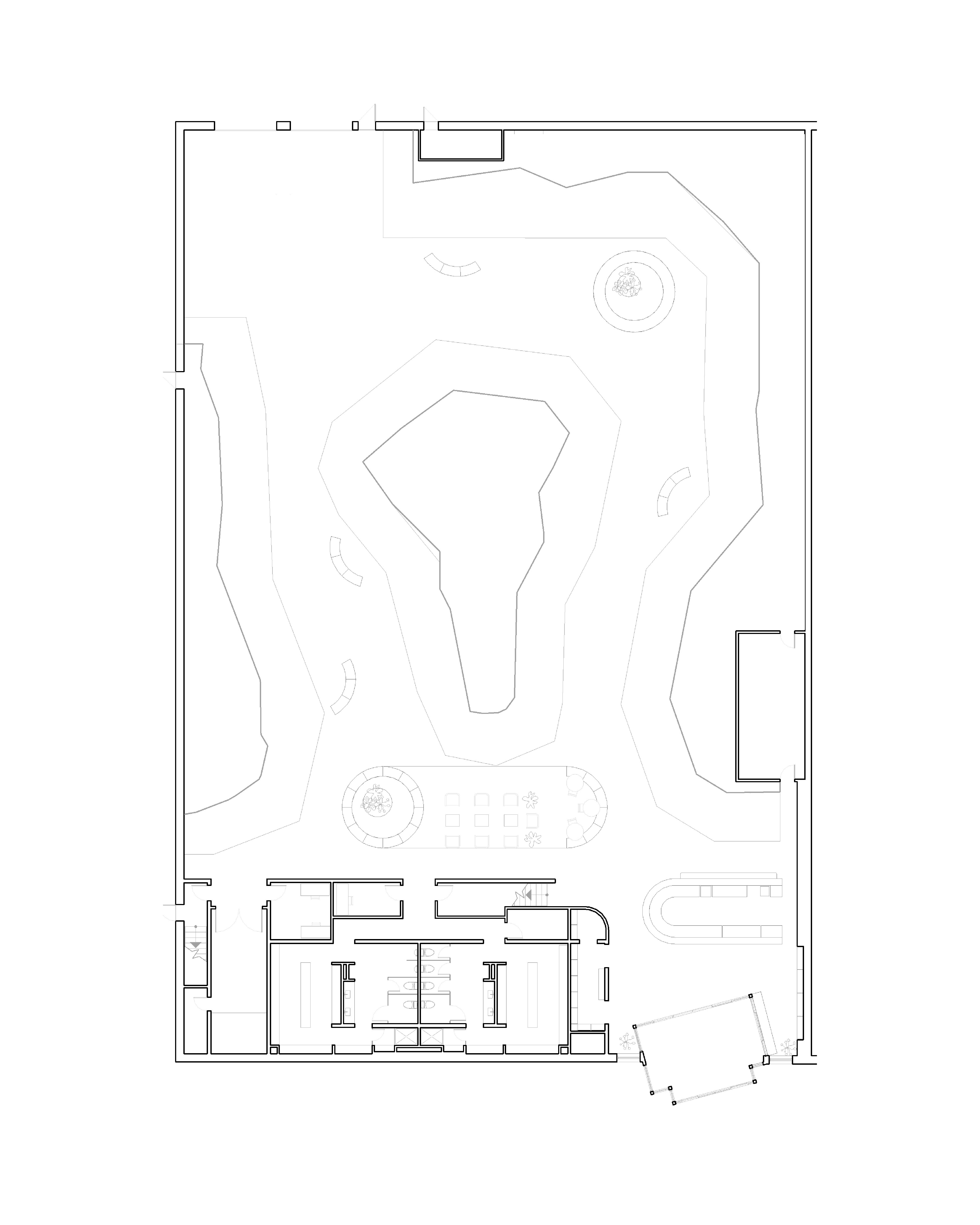
Situé à Greenfield Park, le projet s’intègre à un secteur où l'offre en matière d’escalade de bloc est limitée et s’ouvre ainsi à une nouvelle communauté. Le bâtiment, de type magasin à grande surface, favorise l’intégration des fonctions sportives en offrant une grande flexibilité spatiale et la possibilité d’un déploiement en hauteur.

Des zones d’activités variées sont créées et liées entre elles à travers le déploiement d’un parcours en boucle qui débute et se termine à l’accueil, véritable cœur du centre.

Situé à Greenfield Park, le projet s’intègre à un secteur où l'offre en matière d’escalade de bloc est limitée et s’ouvre ainsi à une nouvelle communauté. Le bâtiment, de type magasin à grande surface, favorise l’intégration des fonctions sportives en offrant une grande flexibilité spatiale et la possibilité d’un déploiement en hauteur.

Des zones d’activités variées sont créées et liées entre elles à travers le déploiement d’un parcours en boucle qui débute et se termine à l’accueil, véritable cœur du centre.

Les différentes fonctions coexistent harmonieusement dans l’espace grâce à des ambiances distinctes qui se répondent; l’emploi de formes fluides pour les espaces de socialisation offre un contraste apaisant aux installations sportives. La simplicité des matériaux et les teintes plus sombres, élégantes, soutiennent une proposition globale invitante et distinctive de l’offre des centres sportifs traditionnels.

Les différentes fonctions coexistent harmonieusement dans l’espace grâce à des ambiances distinctes qui se répondent; l’emploi de formes fluides pour les espaces de socialisation offre un contraste apaisant aux installations sportives. La simplicité des matériaux et les teintes plus sombres, élégantes, soutiennent une proposition globale invitante et distinctive de l’offre des centres sportifs traditionnels.

Le caractère singulier du centre se découvre dès l’entrée, où l’ espace d’accueil se jumelle à un espace café. Les surfaces foncées, les parois courbes et la disposition de places assises en font un premier lieu d’arrêt chaleureux. L’utilisation généreuse de bois suggère une ambiance domestique et familière.

Le caractère singulier du centre se découvre dès l’entrée, où l’ espace d’accueil se jumelle à un espace café. Les surfaces foncées, les parois courbes et la disposition de places assises en font un premier lieu d’arrêt chaleureux. L’utilisation généreuse de bois suggère une ambiance domestique et familière.

La disposition de la mezzanine introduit une échelle intime et crée une transition douce vers les installations d’escalade. Cette plateforme surélevée devient un espace libre qui peut être adapté en fonction des besoins.

Dans l'aire d'activités principale, des espaces propices aux petits rassemblements ponctuent l’espace et sont caractérisés par des formes organiques et fluides qui dialoguent avec les parois angulaires.

La disposition de la mezzanine introduit une échelle intime et crée une transition douce vers les installations d’escalade. Cette plateforme surélevée devient un espace libre qui peut être adapté en fonction des besoins.

Dans l'aire d'activités principale, des espaces propices aux petits rassemblements ponctuent l’espace et sont caractérisés par des formes organiques et fluides qui dialoguent avec les parois angulaires.