
Résidence Rockland
La résidence Rockland est en dialogue avec son contexte: ses propres qualités architecturales contribuent à l’identité du quartier et en retour, la spécificité du secteur accentue son intérêt.
Collaborateur(s)
Typologie
Résidentiel
Lieux
Montréal, Qc
Année de conception
2022
Services
Architecture (concours)
Architecture (concours)
Architecture (concours)
Ce centre s'insère dans un quartier aux potentiels riches, à proximité du canal Lachine, d'un woonerf, d'une école secondaire et de sa vie communautaire.





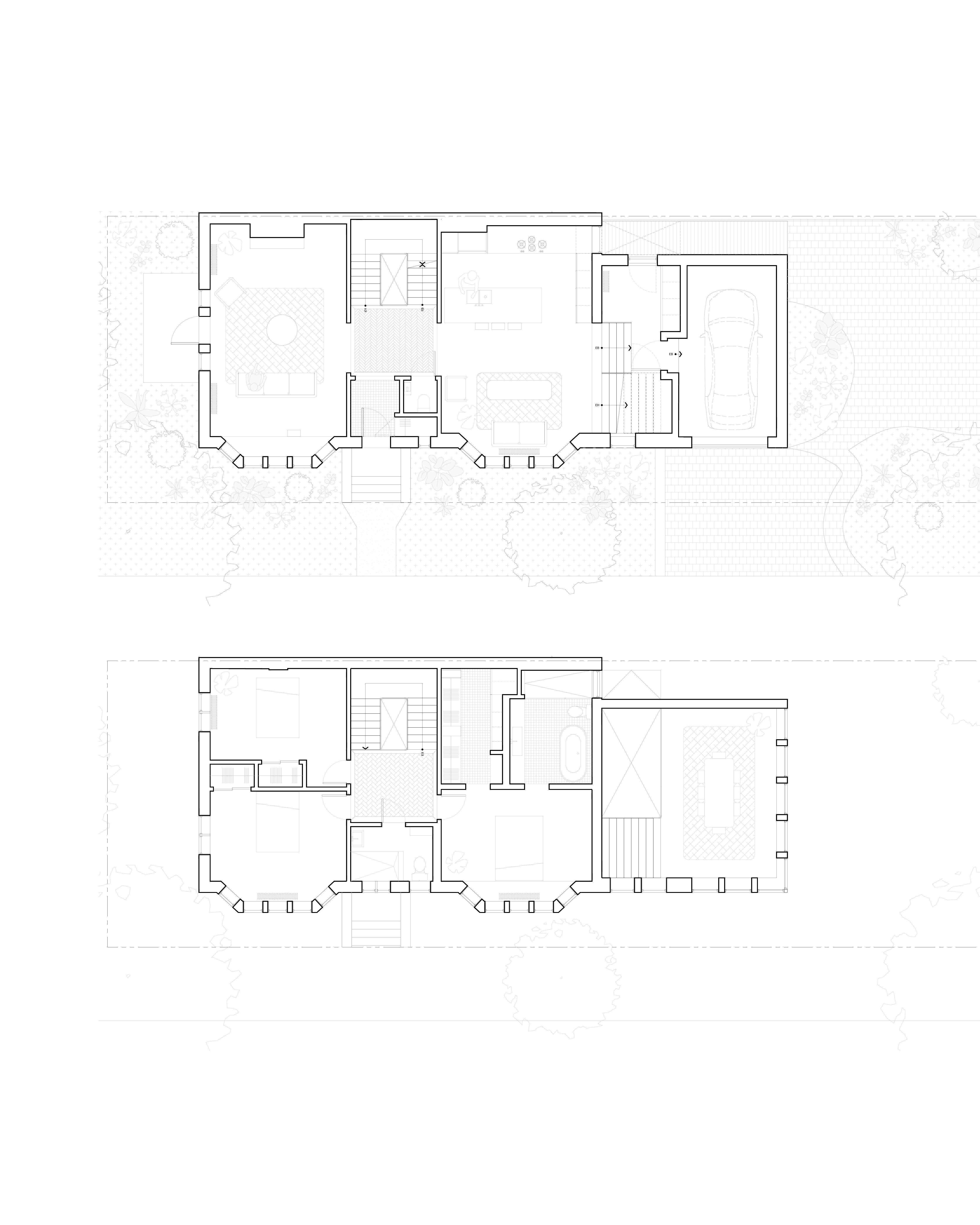
Le souhait des propriétaires, une jeune famille, était d’introduire un sentiment d’ouverture dans cette maison d'Outremont et de favoriser une abondance de lumière naturelle dans les espaces intérieurs fortement compartimentés.
Les interventions paysagères s’ancrent dans une volonté similaire d’évolution, cette fois-ci dans le rapport entre la résidence et son contexte d’implantation. La transformation de cet espace gazonné, réalisée en collaboration avec Nouveaux Voisins, a d'abord été motivé par la volonté de redonner cet espace à la biodiversité.

Le souhait des propriétaires, une jeune famille, était d’introduire un sentiment d’ouverture dans cette maison d'Outremont et de favoriser une abondance de lumière naturelle dans les espaces intérieurs fortement compartimentés.
Les interventions paysagères s’ancrent dans une volonté similaire d’évolution, cette fois-ci dans le rapport entre la résidence et son contexte d’implantation. La transformation de cet espace gazonné, réalisée en collaboration avec Nouveaux Voisins, a d'abord été motivé par la volonté de redonner cet espace à la biodiversité.







À l’intérieur de la maison, nouveau et existant cohabitent grâce à des interventions précises au niveau de la configuration des espaces et de leur matérialité. Si la cuisine se réinstalle à son emplacement d’origine, elle est modernisée selon les besoins des résidents. Un grand îlot s’installe asymétriquement dans l’espace afin de maximiser les surfaces de travail et de fluidifier la circulation.

À l’intérieur de la maison, nouveau et existant cohabitent grâce à des interventions précises au niveau de la configuration des espaces et de leur matérialité. Si la cuisine se réinstalle à son emplacement d’origine, elle est modernisée selon les besoins des résidents. Un grand îlot s’installe asymétriquement dans l’espace afin de maximiser les surfaces de travail et de fluidifier la circulation.











Le réemploi du chêne blanc assure une connexion entre les différentes pièces, la mise en valeur des boiseries d’origine vient adoucir les lignes plus franches des nouveaux mobiliers.
En contraste à ces aires de vie lumineuses, certaines pièces ont été réfléchies de manière à offrir des expériences distinctes, plus près des ambiances de la maison d’origine. C’est le cas notamment du salon qui offre une atmosphère agréable et enveloppante, invitant à la tranquillité et à la discussion.

Le réemploi du chêne blanc assure une connexion entre les différentes pièces, la mise en valeur des boiseries d’origine vient adoucir les lignes plus franches des nouveaux mobiliers.
En contraste à ces aires de vie lumineuses, certaines pièces ont été réfléchies de manière à offrir des expériences distinctes, plus près des ambiances de la maison d’origine. C’est le cas notamment du salon qui offre une atmosphère agréable et enveloppante, invitant à la tranquillité et à la discussion.


Précises et réfléchies, les interventions proposées parviennent à préserver et valoriser les éléments architecturaux d’origine tout en modernisant l’habitation. La proposition optimise l’expérience et le confort des différents espaces, contribue à la pérennité du cadre bâti et fait évoluer le dialogue entre la résidence et son contexte.

Précises et réfléchies, les interventions proposées parviennent à préserver et valoriser les éléments architecturaux d’origine tout en modernisant l’habitation. La proposition optimise l’expérience et le confort des différents espaces, contribue à la pérennité du cadre bâti et fait évoluer le dialogue entre la résidence et son contexte.



